PRESS RELEASE: Boys & Girls Club of the Muskegon Lakeshore Releases Construction Plans for The Clubhouse MKG Project

Friday, March 18, 2022

Contact: Monica Turnbull - mturnbull@bgclubmuskegon.com

Boys & Girls Club of the Muskegon Lakeshore (BGCML) is excited to release the Clubhouse MKG project’s proposed redevelopment and usage plans for the 900 West Western property in Muskegon, MI. This longtime community asset, which has primarily served residents of Muskegon County as a fitness center since 1979, was purchased by BGCML in May of 2021.

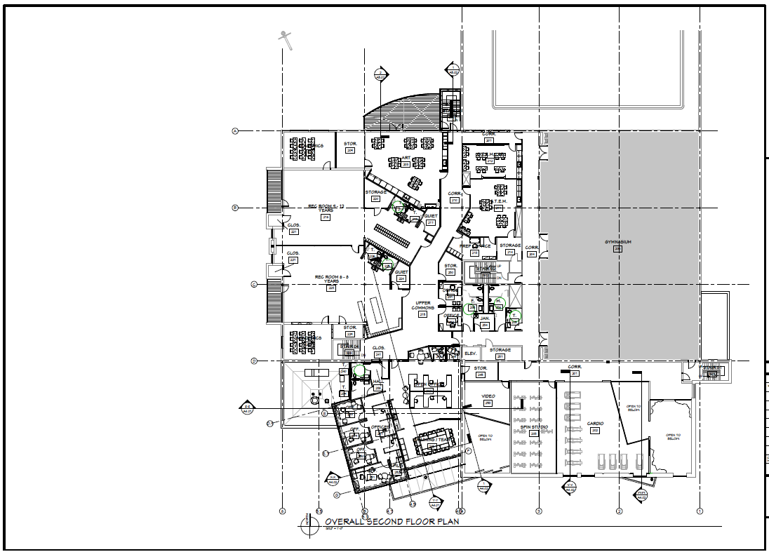
The Clubhouse MKG project aims to re-establish the 900 West Western property as Muskegon County’s community center for all. The Clubhouse MKG now accommodates and will continue to house the Neal Fitness Center (NFC), an aquatics center, Bob & Merle Scolnik Boys & Girls Club, Shape Corp Teen Zone, and i’move. After the renovations, the building will also feature an administration wing sponsored by the Olthoff Family that will offer shared office space for additional community partners.

Bids have been sent out to local West Michigan companies with a focus on locality, quality, and cost as the main drivers for whom will be selected as the general contractor for the project. The 44-year-old building will undergo a transformation on the inside and out, including an update of the HVAC system and adding a geothermal energy source. The renovated Clubhouse MKG will also include a rock-climbing wall, multiple universal changing rooms with lockers and showers, a dry sauna, fitness studios, a music recording studio, a golf simulator, state of the art STEM lab, outdoor recreation areas, youth fishing pier, community lake access, commercial kitchen and so much more.

BGCML is currently finalizing plans to ensure operations and programs for the NFC, BGC and the Teen Zone will be continued throughout the renovations. Due to the extent of the project, the building will be shut down throughout the duration of the construction, and all services within The Clubhouse MKG will be temporarily relocated to make all of these necessary updates. BGCML is working with partners to continue service for all members, with more details to come.

BGCML began as 30 kids in the basement of Nelson Elementary School and has expanded to 1,700 members. BGCML offers programs across six school-based sites, the Clubhouse, and multiple summer park sites serving youth ages 6-18. Within the Clubhouse, BGCML provides a safe place for local youth to call home, and during program hours, offers members a snack, hot meal, homework help, educational activities, and valuable relationships. The opportunities for continued growth that will positively impact our community for future generations are tremendous. A Club member is 97% more likely to graduate from high school compared to 89.13% of their Muskegon County peers, and 85% of Club teen members expect to go to a 4-year college, junior college, or trade school, increasing the talent pool in our community. The new Clubhouse MKG would nearly double BGCML’s capacity to serve Muskegon’s youth and the community as a result.

The Clubhouse MKG is more than 80% toward its capital campaign goal of $7.5 million to give this long-standing community asset the renovations and alterations required to maximize its service to the growing NFC membership base, youth, and community members. BGCML has raised funding via donations and pledges, but there is still a significant financial need for support over the next several months and years to complete this shovel-ready project and compile endowment funds for sustainability. It takes gifts of all sizes to make this possible. Naming opportunities are available from $1,000 to $2M, which include a donor pathway brick, specific room dedication, and naming rights for spaces throughout The Clubhouse MKG.

BGCML has received financial support from the BGCML board, over 175 community members, 17 businesses, 12 foundations, and one local municipality, The Clubhouse MKG project has raised $5.8M and is a shovel-ready project. As much as this project is ready to begin, BGCML still needs support from the local community.

BGCML greatly appreciates and offers sincere thanks to the generous donors who have given or pledged to the Capital Campaign to date: The House Foundation; Gary Neal & Chris McGuigan; City of Muskegon; Robert & Merle Scolnik; Shape Corp.; Tom DeVoursney; Hines Corporation; Howmet Aerospace Inc.; Frey Foundation; John & Kathleen Workman; Michael & Kay Olthoff; The Mart Dock; Phil & Kathy Dickinson Dan & Sheryl Kuznar; Verplank Trucking; Dr. Tony & Pamela Wilson; Webb Chemical Service Corp. Meijer Foundation; Steve & Deb Jackson; Orville & Susan Crain; Nate & Lindsey Heyboer; Steve, Deb, Dan & Kendra Olsen Fund of the Community Foundation for Muskegon County; L.J Verplank; Versatile Fabrication; Erhardt Construction; Andy & Kelly Hoezee; Nancy & Wayne Kohley; Patrick & Christine Nolan; Paul C. Johnson Fund of the Community Foundation for Muskegon County; Joseph & Kris Balaskovitz; Mike & Marti Youngdahl; Thomas & Mary Elizabeth Trzaska; Bonnie Olson Memorial Fund of the Grand Haven Area Community Foundation; Don & Angie Kalisz; Paul Czekuc; Donald & Nancy Crandall; Dakota & Annah Crow Family; Mary Price & Thomas Schaub; George & Deborah Chmelar; Essex Family Fund of the Community Foundation for Muskegon County; Warner Norcross + Judd; Cathy & Bernie Berntson; Adam & Margaret Assink; The Martin Fund of the Community Foundation for Muskegon County; Jeanne Hines; Susan Meston; John & Susan Noling; Heather Kettler; Brian & Jodie Gamm; DJ & Tricia Hilson; Darlene Collet; Stuart & Helen Jones; Robert & Priscilla Taylor; Pat & Ed Schroeder; Pamela Babbitt; Preferred Chrysler Dodge Jeep Ram of Muskegon; Kris & Bill Johanson; Adam & Elizabeth Rolinski; Timothy & Cheryl Arter; Robert & Kristy Tolbert; David & Luise Calkins; Muskegon Northside Lions Club; Eugene Fethke Jr.; Mark Meyers; Deborah & Logan Sweet; and others.

The outside of The Clubhouse MKG will display a monument dedicated to the original donors of the building to honor the building’s legacy and welcome the present and future generations that pass through the doors.

The Clubhouse MKG will release updated construction information including a start date via their website as construction details and funding are confirmed. The Clubhouse MKG project aims to begin construction only after seeking further community support to bridge the funding gap for this shovel-ready project to make this vision a reality for Muskegon. To donate to The Clubhouse MKG Capital Campaign, please visit ClubhouseMKG.com

About BGCML:

BGCML has a mission to inspire and enable all youth, especially those who need us most, to reach their full potential as productive and caring citizens. BGCML keeps kids safe during out-of-school time by providing a positive environment where they can learn, play, and grow. Club staff lead innovative, proven, and nationally recognized programs that are designed to empower youth to excel in school, become good citizens, and lead healthy, productive lives. The Clubhouse MKG will positively impact the Muskegon Community by:

  • Building Youth Capacity by offering a diversity of evidence-informed experiences that help youth build skills and achieve positive outcomes.

  • Building Staff Capacity by offering training and professional development that centers around high-quality youth development practices and translates to positive youth outcomes.

  • Building Club Capacity by increasing program quality through Continuous Quality Improvement (CQI) that identifies opportunities to improve the overall Club experience.

  • Building Community Health Capacity by offering youth, family and community access to fitness and nutrition programs.

The BGCML Board of Directors includes Ted Anton, Jon Covington, Chris Dean, Tom DeVoursney, Jenny Hart Locke, Nate Heyboer, DJ Hilson, Spencer Hines, Andy Hoezee, Don Kalisz, Jack Kennedy, Jeff Lewis, Chris McGuigan, Bob Scolnik, Brianna Scott, and Dr. Tony Wilson.

Have a question? Email us at info@clubhousemkg.com

Clubhouse First Floor Plan
Clubhouse Lego Robotics
Clubhouse Second Floor Plan
Teen Zone Plans